随着居住理念的改变,人们对家居质量的要求越来越高,被誉为“设计界的法拉利”、“装饰界的吉尼斯”装饰新物种——岩板横空出世之后,立马被设计师们应用到各个空间设计中。2018年米兰国际家居展上,岩板的广泛应用,更奠定了岩板今后装饰地位。
那岩板到底有什么魅力这么受重视呢?本文就岩板的性能及应用详细讲解,主要解决以下问题:
1、岩板的性能及特点是什么?
2、岩板可以应用在哪些领域范围中?
3、薄岩板在施工中具体工艺是怎样的?
01.
岩板的性能特点
相比于传统材料,岩板逼真的仿石3D纹理、细腻质感、坚硬而柔韧耐磨的特质,强势上位。复杂多变的颜色和透光的材质,使其从传统进阶到建筑领域,从家具陈设到总体设计多方面完美融入。
1、超大、超轻、超薄
岩板采用特殊的工艺可实现板材的极致限度,可制成超大规格配载极薄的厚度3600*1200*3mm,是目前建筑界罕见的物理机械特性。
能在2000℃明火面前还保持不收缩、不破裂、不变色的板材也只有防火岩板了,而且A1级防火岩板在遇明火时也不会散发任何气味,超强硬核实力使岩板在烹饪界也占一定席位。
3、耐刮、耐磨、耐腐蚀
高温高压生成的岩板,莫氏硬度达到6级,耐刮、耐磨的特性可直接用钢刀测试划痕,被誉为“建材界的金刚狼”;岩板极强的耐腐蚀性也可用于酸碱实验室台面、医院抗菌墙体和操作台面等有较高要求的地方。

4、零渗透、极耐污
万分之一的渗水率是人造建材界的新指标,污渍无法渗透,用湿毛巾就可擦拭干净,简单快速又不会滋生细菌,5级耐污及抗菌抑菌效果,轻松实现食品级表面地认证。

02.岩板的适用场所

1、岩板性能卓越超大(3600*1200)超薄(3mm),以及多种厚度诸多优越物理性能,使岩板可应用于室内外各类平面空间。

2、因其本身具备耐刮、耐磨、耐腐蚀的特性,也被用于要求严苛的医院空间和厨房空间。

3、岩板的纹理丰富多样和细腻的质感,加上可根据需要进行定制,被设计师广泛应用于酒店以及公共空间、家具设计、墙面、地面铺贴等不同领域。
03.墙面岩板施工工艺

作为新兴的装饰材料,岩板其尺寸超大,花色自然,厚度薄,重量轻等特点,受到装饰市场的热捧,有逐步替代天然大理石的趋势。但是也因为他尺寸大,厚度薄的特点给施工安装带来了很大的难度。墙面岩板施工流程:基层处理→弹线定位、板材切割→墙面刮胶→墙面刮胶→薄板铺贴→调平器安装→调平器安装→表面清洁与保护
1、基层处理
用水平红外仪对基层平整度和垂直度进行检查,确保基层平整度能够符合岩板安装要求;基层上抹涮底涂胶水,确保基层与瓷砖粘接剂的粘性。
2、弹线定位、板材切割
按照设计图纸上岩板分格方案在基层上进行放线,确保设计尺寸与现场实际尺寸匹配。根据弹线分格尺寸用手动导轨切割刀进行裁切,用电动切割机进行开孔。

△弹线定位
△切割板材
3、墙面刮胶
购买专业的大板粘接剂,现场按照配比兑水进行制备。墙面上用镘刀面抹上8mm左右厚的瓷砖粘接剂,在瓷砖粘接剂四周再打改性硅烷结构胶。

△墙面刮胶
4、墙面刮胶
板材背面抹涮底涂胶水,确保岩板与瓷砖粘接剂的粘性。板材背面用镘刀抹上5mm厚左右的瓷砖粘接剂。
△板材刮胶
5、薄板铺贴
利用真空吸盘抬板器将裁切并刮好粘接剂的岩板贴上墙面,板材边缘预埋调平器。并用电动的震动器对岩板背面的粘接剂进行挤压,保证粘接剂厚度均匀。

△铺贴岩板

△电动震动器
6、调平器安装
调平器安装并夹紧,调平相邻两边板材的边缘,避免高低缝。

△调平器安装
7、调平器安装
因岩板纹理、样式不同,所以在填缝是要用同色填缝剂对岩板缝进行抹缝处理,以防影响美观。
△填缝处理
8、表面清洁与保护
用刮刀和抹布及时清理岩板表面的粘接剂和污渍,并用护角重点保护瓷砖的边缘、尖角等易受到磕碰的地方。

△成品保护
04.
板材铺贴注意及工艺节点
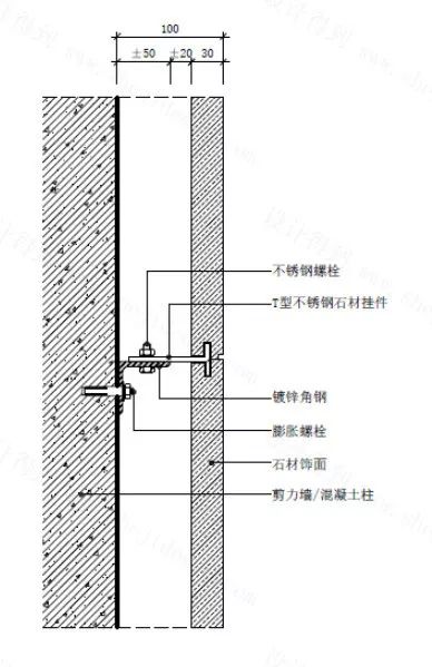
1、专用大板粘结剂
岩板铺贴施工时,需使用专业的粘结胶,而非传统水泥,因为使用水泥铺贴大板容易造成空鼓现象。

△墙面石材干挂节点图
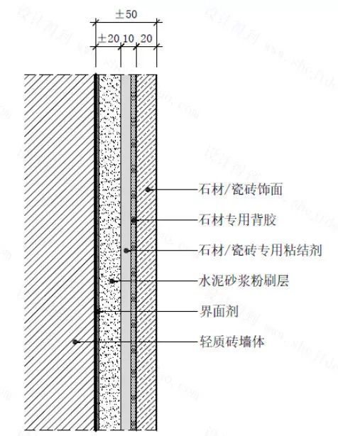
2、贴刷胶厚度适宜
瓷砖粘结剂铺贴厚度以5-7mm为宜,瓷砖胶过厚容易导致后期脱落,可配合粘结剂一起使用。
△墙面瓷砖/石材湿贴节点图
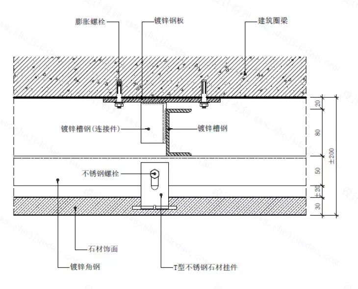
3、干挂
铺贴高度超过7.2m,需使用干挂法。另,填缝处理时使用美缝剂/瓷缝剂,增加瓷砖的整体美观感,不会霉变。

△墙面石材干挂横剖节点